Privato Vende
€ 85.000
- 1 locale
- 65 mq
- 1 bagno
Negozio in Vendita da Privato a Pordenone
Ottima Visibilità
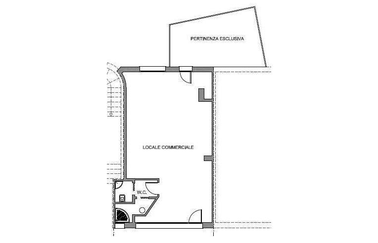
PORDENONE - Borgomeduna, Su strada di intenso passaggio veicolare e pedonale, in prossimità di interessanti attività commerciali e di servizio, vendesi negozio con vetrina della superficie commerciale di circa 65 mq, con servizio e doccia.
Presenza di scoperto di pertinenza di circa 20 mq. Attualmente locato con rendita del 7%. Disponibile da subito.
Presenza di scoperto di pertinenza di circa 20 mq. Attualmente locato con rendita del 7%. Disponibile da subito.
DATI PRINCIPALI
- Riferimento
- 65234
- Contratto
- Vendita
- Tipologia
- Immobile - Negozio
- Superficie
- 65 mq
- Superficie esterna
- 20 mq
- Locali
- 1
- Bagni
- 1
- Piano
- Piano terra
CARATTERISTICHE
Giardino privato
Cablato
COSTI
- Prezzo
- € 85.000,00
EFFICIENZA ENERGETICA
- Stato
- Abitabile
- Anno costruzione
- 1978
- Climatizzazione
- Si
- Classe energetica
- E
- IPE
- 36,91 kWh/m³a
A+
A
B
C
D
36,91 kWh/m³a | Classe energetica E
E
F
G
CONTATTA L'INSERZIONISTA
- Aggiornato al 28 nov 2025
Annunci simili
€ 280.000
- 5+ locali
- 250 mq
