Privato Affitta
€ 580
- 3 locali
- 70 mq
- 2 bagni
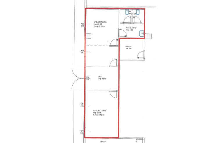
Laboratorio in Affitto da Privato a Trento
Uffici/Laboratori a Ravina – Trento: Ampi spazi, Zero stress
Affittasi a Ravina spazio di ampia metratura perfetto per professionisti o piccole imprese. L'immobile è composto da due grandi sale operative più zona ingresso indipendente.
Parcheggio facile: Posti auto esterni per te e i tuoi clienti.
Costi ridotti: Pochissime spese di gestione, per far correre il tuo business senza pesi inutili.
Posizione strategica: Raggiungibile in un attimo, fuori dal traffico del centro ma vicinissimo a tutto.
Libero da maggio 2026. Contattaci per un sopralluogo!
LEGGI TUTTO...
Parcheggio facile: Posti auto esterni per te e i tuoi clienti.
Costi ridotti: Pochissime spese di gestione, per far correre il tuo business senza pesi inutili.
Posizione strategica: Raggiungibile in un attimo, fuori dal traffico del centro ma vicinissimo a tutto.
Libero da maggio 2026. Contattaci per un sopralluogo!
DATI PRINCIPALI
- Riferimento
- 411096
- Contratto
- Affitto
- Tipologia
- Immobile - Laboratorio
- Superficie
- 70 mq
- Superficie esterna
- 70 mq
- Superficie uffici
- 67 mq
- Locali
- 3
- Bagni
- 2
- Piano
- Piano terra
- Totale piani
- 3
- Box/Posto auto
- Posto auto scoperto
CARATTERISTICHE
Giardino
Ascensore
Arredato
Cablato
Allarme
Cantina
COSTI
- Canone
- Affitto € 580,00 al mese
- Tipo locazione
- 6+6
EFFICIENZA ENERGETICA
- Stato
- Abitabile
- Riscaldamento
- Autonomo
- Climatizzazione
- Si
- Classe energetica
- C
- IPE
- 26,39 kWh/m³a
A+
A
B
26,39 kWh/m³a | Classe energetica C
C
D
E
F
G
MAPPA
CONTATTA L'INSERZIONISTA
- Annuncio del 20 gen 2026
