Privato Affitta
€ 550
- 3 locali
- 12 mq
Ufficio in Affitto da Privato a Milano
Ufficio in Sempione zona Citylife
Affitto da 1 a 3 uffici compreso di spese (acqua, luce, gas, internet e pulizie) e con utilizzo di stampante.
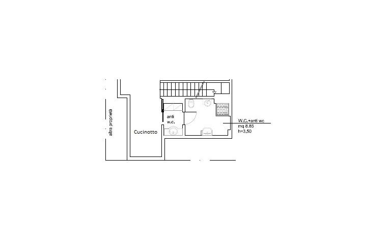
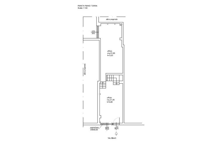
I locali sono composti da un ingresso con vetrina dove vi saranno gli schermi pubblicitari dei partner. Da un primo spazio subito successivo all'accoglienza ed altri due spazi in piano rialzato. Completano il tutto il bagno da ufficio (con doccia) e l'angolo caffè al piano interrato. Il locale si trova a due passi da Citylife in una traversa di Sempione, servitissimo da Metro, Tram e Passanti. E' perfetto per professionisti (compreso piccoli studi professionali associati) , aziende che hanno necessità di uno spazio limitato in centro a Milano. Il prezzo è trattabile in base alle necessità ma è per uno spazio e comprende, come detto la parte di canone e la parte di spese. I metri quadri (orientativi) si riferiscono al singolo locale. Vi è naturalmente aria condizionata e riscaldamento. Il palazzo è di bell'aspetto e la strada è tranquilla ma centralissima.
Il Locale è consegnato ristrutturato a nuovo ed è possibile apportare piccole modifiche tramite diverso piazzamento delle pareti separatorie, visionabile da subito.
LEGGI TUTTO...
I locali sono composti da un ingresso con vetrina dove vi saranno gli schermi pubblicitari dei partner. Da un primo spazio subito successivo all'accoglienza ed altri due spazi in piano rialzato. Completano il tutto il bagno da ufficio (con doccia) e l'angolo caffè al piano interrato. Il locale si trova a due passi da Citylife in una traversa di Sempione, servitissimo da Metro, Tram e Passanti. E' perfetto per professionisti (compreso piccoli studi professionali associati) , aziende che hanno necessità di uno spazio limitato in centro a Milano. Il prezzo è trattabile in base alle necessità ma è per uno spazio e comprende, come detto la parte di canone e la parte di spese. I metri quadri (orientativi) si riferiscono al singolo locale. Vi è naturalmente aria condizionata e riscaldamento. Il palazzo è di bell'aspetto e la strada è tranquilla ma centralissima.
Il Locale è consegnato ristrutturato a nuovo ed è possibile apportare piccole modifiche tramite diverso piazzamento delle pareti separatorie, visionabile da subito.
DATI PRINCIPALI
- Riferimento
- 213039
- Contratto
- Affitto
- Tipologia
- Immobile - Ufficio
- Superficie
- 12 mq
- Locali
- 3
COSTI
- Canone
- Affitto € 550,00 al mese
- Tipo locazione
- Libero
CONTATTA L'INSERZIONISTA
- Aggiornato al 25 mar 2026
Annunci simili
Trattativa Riservata
- 5+ locali
- 150 mq
