Privato Affitta
€ 1.200
- Più di 5 locali
- 370 mq
- 4 bagni
Palazzo/Stabile in Affitto da Privato a Bari
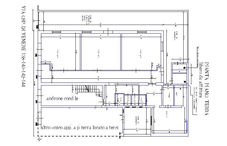
Immobile com.le vic.Osp. DiVenere, libero ex scuola materna
Immobile com.le vic.Osp. DiVenere, libero ex scuola materna pubblica gestita dal Comune di Bari
Immobile commerciale vicinissimo all’ Ospedale DiVenere, attualmente libero per ottima scuola materna o altri usi ( SCUOLA DI OGNI TIPO,uffici, studi medici, B &B, ristorazione ecc. ecc.) CON TRAMEZZI SPOSTABILI O ELIMINABILI , utilizzato fino a qualche mese fa dal Comune di Bari per Scuola Materna a tre sezioni con cucina e molti accessori autonomi (ampio cortile esclusivo CARRABILE di mq 100 idoneo anche a 3 park auto, centrale termica autonoma ecc.. ecc. ) La superficie coperta a p. terra (di altezza netta interna di m 4,00) è di mq 267,00; la superficie del cortile scoperto è di mq 100,00 (accessibile anche con accesso carrabile da via Divenere) TOTALE MQ 367,00 Tutti gli impianti tecnologici (elettrico, gas metano, riscaldamento, illuminazione, illuminazione di emergenza e di allarme sono autonomi e a norma di legge) L’accesso avviene dai n. civici 138,140,142 e 144 di Via Osp. Divenere .
LEGGI TUTTO...
Immobile commerciale vicinissimo all’ Ospedale DiVenere, attualmente libero per ottima scuola materna o altri usi ( SCUOLA DI OGNI TIPO,uffici, studi medici, B &B, ristorazione ecc. ecc.) CON TRAMEZZI SPOSTABILI O ELIMINABILI , utilizzato fino a qualche mese fa dal Comune di Bari per Scuola Materna a tre sezioni con cucina e molti accessori autonomi (ampio cortile esclusivo CARRABILE di mq 100 idoneo anche a 3 park auto, centrale termica autonoma ecc.. ecc. ) La superficie coperta a p. terra (di altezza netta interna di m 4,00) è di mq 267,00; la superficie del cortile scoperto è di mq 100,00 (accessibile anche con accesso carrabile da via Divenere) TOTALE MQ 367,00 Tutti gli impianti tecnologici (elettrico, gas metano, riscaldamento, illuminazione, illuminazione di emergenza e di allarme sono autonomi e a norma di legge) L’accesso avviene dai n. civici 138,140,142 e 144 di Via Osp. Divenere .
DATI PRINCIPALI
- Riferimento
- 394939
- Contratto
- Affitto
- Tipologia
- Palazzo/Stabile
- Superficie
- 370 mq
- Locali
- Più di 5
- Camere da letto
- 3
- Cucina
- Abitabile
- Bagni
- 4
- Piano
- Piano terra
- Totale piani
- 1
- Box/Posto auto
- Doppio
CARATTERISTICHE
Balcone
Terrazzo
Giardino privato
Ascensore
Arredato
Cantina
COSTI
- Canone
- Affitto € 1.200,00 al mese
- Tipo locazione
- Libero
- Spese condominiali
- € 10,00 / mese, non incluse nel canone
EFFICIENZA ENERGETICA
- Stato
- Abitabile
- Anno costruzione
- 1980
- Riscaldamento
- Autonomo
- Climatizzazione
- Predisposizione
MAPPA
CONTATTA L'INSERZIONISTA
- Aggiornato al 12 mar 2026
