Privato Vende
€ 140.000
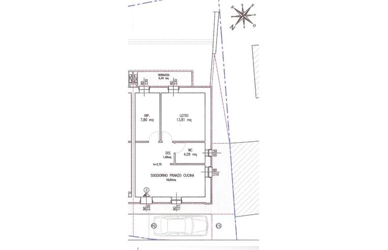
- 4 locali
- 75 mq
- 1 bagno
Palazzo/Stabile in Vendita da Privato a Colli al Metauro
PALAZZINA DI QUATRO APPARTAMENTI PIù SEMINTERRATO
E' UNA PALAZINA ristrutturata molto di recente DI QUATRO APPARTAMENTI INDIPENDENTI PIU' UN SEMINTERRATO DI 90MQ CON POSSIBILITA DI CAMBIO DESTINAZIONE DUSO,PURE QUESTO E' INDIPENDENTE.
-PRESENTO GLI APPARTAMENTI, SONO COMPOSTI IN : ingresso indipendente , cucina , bagno con doccia , camera matrimoniale , stanzino per camera singola , terrazzo/i , posto macchina , caldaia per riscaldamenti e acqua calda ,contatore di acqua e luce , pannello solare , cappotto , tetto ventilato
-PRESENTO GLI APPARTAMENTI, SONO COMPOSTI IN : ingresso indipendente , cucina , bagno con doccia , camera matrimoniale , stanzino per camera singola , terrazzo/i , posto macchina , caldaia per riscaldamenti e acqua calda ,contatore di acqua e luce , pannello solare , cappotto , tetto ventilato
DATI PRINCIPALI
- Riferimento
- 293304
- Contratto
- Vendita
- Tipologia
- Palazzo/Stabile
- Superficie
- 75 mq
- Locali
- 4
- Camere da letto
- 2
- Cucina
- Angolo cottura
- Bagni
- 1
- Box/Posto auto
- Singolo
CARATTERISTICHE
Balcone
Terrazzo
Arredato
COSTI
- Prezzo
- € 140.000,00
EFFICIENZA ENERGETICA
- Stato
- Ristrutturato
- Anno costruzione
- 2000
- Riscaldamento
- Autonomo
MAPPA
CONTATTA L'INSERZIONISTA
- Aggiornato al 05 mag 2026
Annunci simili
Trattativa Riservata
- 5+ locali
- 565 mq
