Privato Vende
€ 65.000
- Più di 5 locali
- 124 mq
- 2 bagni
Palazzo/Stabile in Vendita da Privato a Arezzo
palazzina di tre piani con 2 appartamenti possibilita del 3°
Località Fondaccio vicino a Vitiano,a 10 chilometri da Arezzo e da Cortona.
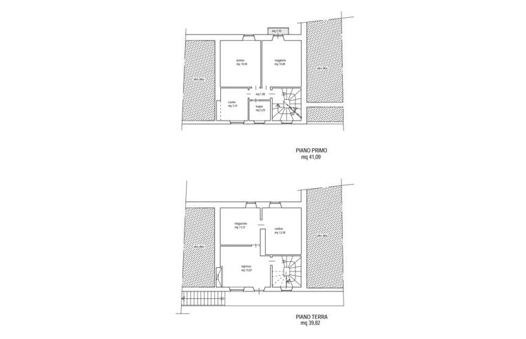
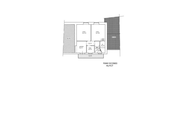
Palazzina di tre piani, di circa mq 124, così suddivisi: Piano terra: ingresso soggiorno con camino,cucina,cantina. Piano primo: soggiorno con camino, cucina, bagno, camera .Piano secondo: soggiorno con camino,cucina,2 camere bagno.Il primo e il secondo piano sono due appartamenti con ingresso indipendente e il piano terra può essere adattato ad un altro appartamento.
Palazzina di tre piani, di circa mq 124, così suddivisi: Piano terra: ingresso soggiorno con camino,cucina,cantina. Piano primo: soggiorno con camino, cucina, bagno, camera .Piano secondo: soggiorno con camino,cucina,2 camere bagno.Il primo e il secondo piano sono due appartamenti con ingresso indipendente e il piano terra può essere adattato ad un altro appartamento.
DATI PRINCIPALI
- Riferimento
- 92016
- Contratto
- Vendita
- Tipologia
- Palazzo/Stabile
- Superficie
- 124 mq
- Locali
- Più di 5
- Camere da letto
- 3
- Cucina
- Cucinotto
- Bagni
- 2
- Piano
- Su più livelli
- Totale piani
- 3
- Box/Posto auto
- No
CARATTERISTICHE
Balcone
Terrazzo
Giardino
Ascensore
Semi-arredato
Cantina
COSTI
- Prezzo
- € 65.000,00
EFFICIENZA ENERGETICA
- Stato
- Abitabile
- Riscaldamento
- Autonomo
- Climatizzazione
- No
CONTATTA L'INSERZIONISTA
- Aggiornato al 27 feb 2026
