Privato Vende
Trattativa Riservata
- Più di 5 locali
- 950 mq
- 3 bagni
Palazzo/Stabile in Vendita da Privato a Ostuni
Palazzotto signorile
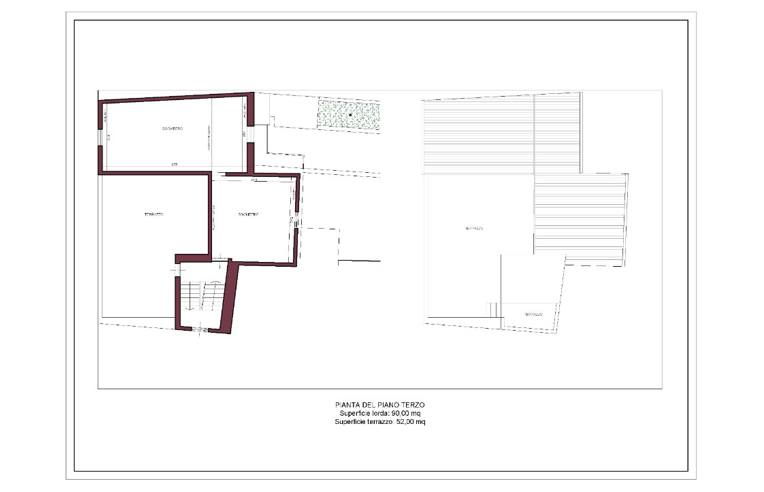
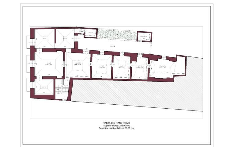
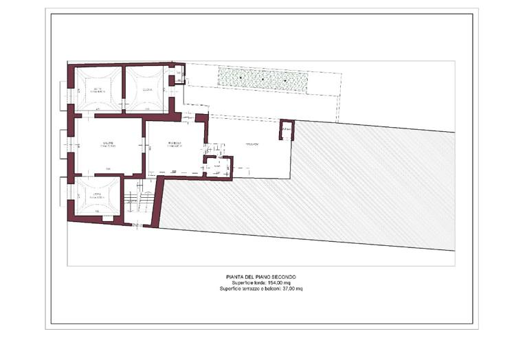
Stabile di fine 800 con frantoio ipogeo al piano seminterrato, autorimessa e locali deposito al piano terreno, n. 2 alloggi ai piani primo e secondo, cortile privato, terrazzi e piano sottotetto.
DATI PRINCIPALI
- Riferimento
- 337656
- Contratto
- Vendita
- Tipologia
- Palazzo/Stabile
- Superficie
- 950 mq
- Locali
- Più di 5
- Camere da letto
- 5
- Cucina
- Abitabile
- Bagni
- 3
- Piano
- Su più livelli
- Totale piani
- 3
- Box/Posto auto
- Singolo
CARATTERISTICHE
Balcone
Terrazzo
Giardino privato
Ascensore
Arredato
Cantina
COSTI
- Prezzo
- Trattativa Riservata
EFFICIENZA ENERGETICA
- Stato
- Da ristrutturare
- Anno costruzione
- 1900
- Riscaldamento
- Autonomo
- Climatizzazione
- No
- Classe energetica
- Immobile non soggetto all'obbligo di certificazione energetica
MAPPA
CONTATTA L'INSERZIONISTA
- Aggiornato al 24 mar 2026
Annunci simili
Trattativa Riservata
- 5+ locali
- 330 mq
