Privato Vende
€ 139.000
- Più di 5 locali
- 645 mq
- 4 bagni
Rustico/Casale in Vendita da Privato a San Vincenzo la Costa
Immobile con annesso terreno agricolo - Prezzo affare
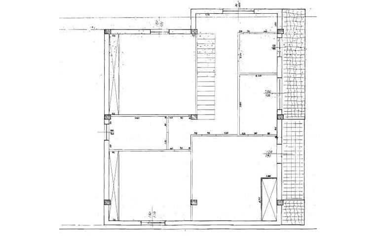
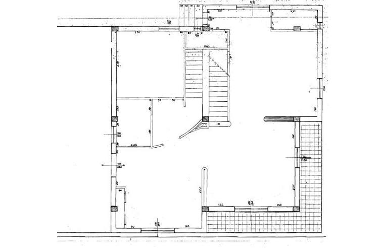
Vendesi immobile sito in località Palazzello nel comune di San Vincenzo la Costa e si sviluppa su di un piano seminterrato, un piano superiore e un piano mansarda tutti ad uso abitativo.
L'immobile comprende una corte di pertinenza di circa 4.000 mq (ad uso agricolo) a cui si accede tramite cancello elettrico; è dotato di doppi servizi per piano, di predisposizione per il riscaldamento autonomo e di un camino a legna annesso ad un forno anch'esso a legna. Gli affacci sono posti sui quattro lati mediante finestre e balconi.
Il piano seminterrato è composto da: autorimessa con due ingressi, una cucina, una camera da letto, un soggiorno con disimpegno, un WC rifinito, una centrale termica con autoclave.
Al piano superiore, non rifinito, è previsto: un soggiorno, una cucina, un ripostiglio, due stanze da letto, due WC (di cui uno completamente rifinito).
Il piano mansarda, completamente rifinito, è composto da: tre stanze da letto e due WC (rifiniti di Lusso).
L'unità abitativa primo piano più mansarda comprende balconi perimetrali e un terrazzo.
La superficie totale dell'abitazione è di circa 645 mq.
LEGGI TUTTO...
L'immobile comprende una corte di pertinenza di circa 4.000 mq (ad uso agricolo) a cui si accede tramite cancello elettrico; è dotato di doppi servizi per piano, di predisposizione per il riscaldamento autonomo e di un camino a legna annesso ad un forno anch'esso a legna. Gli affacci sono posti sui quattro lati mediante finestre e balconi.
Il piano seminterrato è composto da: autorimessa con due ingressi, una cucina, una camera da letto, un soggiorno con disimpegno, un WC rifinito, una centrale termica con autoclave.
Al piano superiore, non rifinito, è previsto: un soggiorno, una cucina, un ripostiglio, due stanze da letto, due WC (di cui uno completamente rifinito).
Il piano mansarda, completamente rifinito, è composto da: tre stanze da letto e due WC (rifiniti di Lusso).
L'unità abitativa primo piano più mansarda comprende balconi perimetrali e un terrazzo.
La superficie totale dell'abitazione è di circa 645 mq.
DATI PRINCIPALI
- Riferimento
- 210014
- Contratto
- Vendita
- Tipologia
- Rustico/Casale
- Superficie
- 645 mq
- Locali
- Più di 5
- Camere da letto
- 4
- Cucina
- Abitabile
- Bagni
- 4
- Totale piani
- 2
- Box/Posto auto
- Doppio
CARATTERISTICHE
Balcone
Terrazzo
Giardino privato
Ascensore
Arredato
Cantina
COSTI
- Prezzo
- € 139.000,00
EFFICIENZA ENERGETICA
- Stato
- Abitabile
- Riscaldamento
- Autonomo
- Climatizzazione
- No
- Classe energetica
- B
A+
A
Classe energetica B
B
C
D
E
F
G
CONTATTA L'INSERZIONISTA
- Aggiornato al 28 ago 2025
MUTUO
Annunci immobiliari da Privati a San Vincenzo la Costa
Comune di San Vincenzo la Costa
- Vendesi rustici e casali senza intermediari San Vincenzo la Costa
- Vendita case da privati San Vincenzo la Costa
Provincia di Cosenza
Annunci simili
€ 98.000
- 5+ locali
- 250 mq
