Privato Vende
€ 50.000
- 1 locale
- 70 mq
Rustico/Casale in Vendita da Privato a Correzzana
RUSTICO
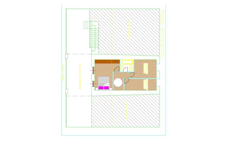
VENDESI IMMOBILE A RUSTICO COMPOSTO DA
GRANDE E UNICA ZONA GIORNO CON CAMINO E
BAGNO (PIANO PRIMO) OLTRE A PIANO
SOTTOTETTO con altezza max 330, ENTRAMBI
PIANI PRESENTANO FINESTRE
LE SOLETTE SONO STATE RIFATTE
RECENTEMENTE è PRESENTE UNA BOTOLA PER
LA SCALA TRAi due piani, NON SONO
NECESSARIE OPERE DI DEMOLIZIONI IN
QUANTO ERANO STATI INIZIATI LAVORI DI
RISTRUTTURAZIONE, POSSIBILITà DI SFRUTTARE
IL PIANO SOTTOTTETTO MEDIANTE RECUPERO
DI SOTTOTETTO Legge Regionale n. 4 del 2012 o
sfruttarlo come locale sgombero, le altezze
permettono lo sfruttamento di tale spazio
LEGGI TUTTO...
GRANDE E UNICA ZONA GIORNO CON CAMINO E
BAGNO (PIANO PRIMO) OLTRE A PIANO
SOTTOTETTO con altezza max 330, ENTRAMBI
PIANI PRESENTANO FINESTRE
LE SOLETTE SONO STATE RIFATTE
RECENTEMENTE è PRESENTE UNA BOTOLA PER
LA SCALA TRAi due piani, NON SONO
NECESSARIE OPERE DI DEMOLIZIONI IN
QUANTO ERANO STATI INIZIATI LAVORI DI
RISTRUTTURAZIONE, POSSIBILITà DI SFRUTTARE
IL PIANO SOTTOTTETTO MEDIANTE RECUPERO
DI SOTTOTETTO Legge Regionale n. 4 del 2012 o
sfruttarlo come locale sgombero, le altezze
permettono lo sfruttamento di tale spazio
DATI PRINCIPALI
- Riferimento
- 348531
- Contratto
- Vendita
- Tipologia
- Rustico/Casale
- Superficie
- 70 mq
- Locali
- 1
COSTI
- Prezzo
- € 50.000,00
CONTATTA L'INSERZIONISTA
- Aggiornato al 01 ott 2025
