Privato Vende
€ 55.000
- 720 mq
Terreno Edificabile Residenziale in Vendita da Privato a San Venanzo
terreno con progetto approvato
Terreno edificabile di mq 720 sito in San Venanzo (TR) alla via Palombaro, con Permesso a Costruire n° 26/07 rilasciato dal Comune di San Venanzo il 21/12/2007, con possibilità di richiesta rinnovo e Oneri Concessori pagati per la parte assentita costituita da due villette unifamiliari adiacenti. Le unità immobiliari assentite dal P. di C. anzidetto sono progettate ognuna in modo indipendente l’una dall’altra da due livelli fuori terra con sovrastante copertura a falda inclinata con pacchetto multistrato di materiale isolante ricoperto da tegole alla romana e da un piano seminterrato adibito a deposito - garage avente accesso carrabile dalla strada comunale.
Descrizione dei singoli piani
PIANO SEMINTERRATO adibito parte a garage e parte a deposito al quale si accede sia dalla rampa posta su via Palombaro e dalla scala interna;
PIANO TERRA Con accesso dal cortile indipendente, ampio soggiorno , cucina abitabile con balcone , bagno con doccia e angolo lavanderia,
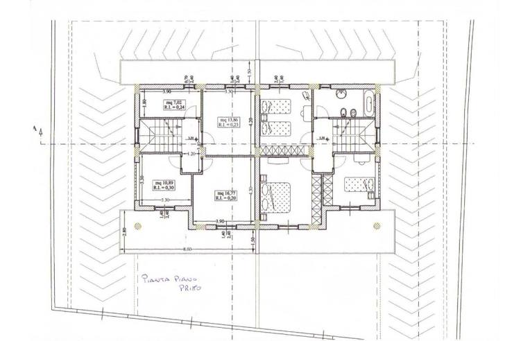
PIANO PRIMO con una camera matrimoniale e due camerette, bagno con vasca, piccolo disimpegno e due balconi.
LEGGI TUTTO...
Descrizione dei singoli piani
PIANO SEMINTERRATO adibito parte a garage e parte a deposito al quale si accede sia dalla rampa posta su via Palombaro e dalla scala interna;
PIANO TERRA Con accesso dal cortile indipendente, ampio soggiorno , cucina abitabile con balcone , bagno con doccia e angolo lavanderia,
PIANO PRIMO con una camera matrimoniale e due camerette, bagno con vasca, piccolo disimpegno e due balconi.
DATI PRINCIPALI
- Riferimento
- 364879
- Contratto
- Vendita
- Tipologia
- Terreno - Edificabile Residenziale
- Superficie
- 720 mq
COSTI
- Prezzo
- € 55.000,00
MAPPA
CONTATTA L'INSERZIONISTA
- Aggiornato al 27 nov 2025
Annunci simili
€ 58.000
- 5800 mq
