Privato Vende
Trattativa Riservata
- Più di 5 locali
- 480 mq
- 4 bagni
Villa in Vendita da Privato a Nuvolento
Elegante villa Singola
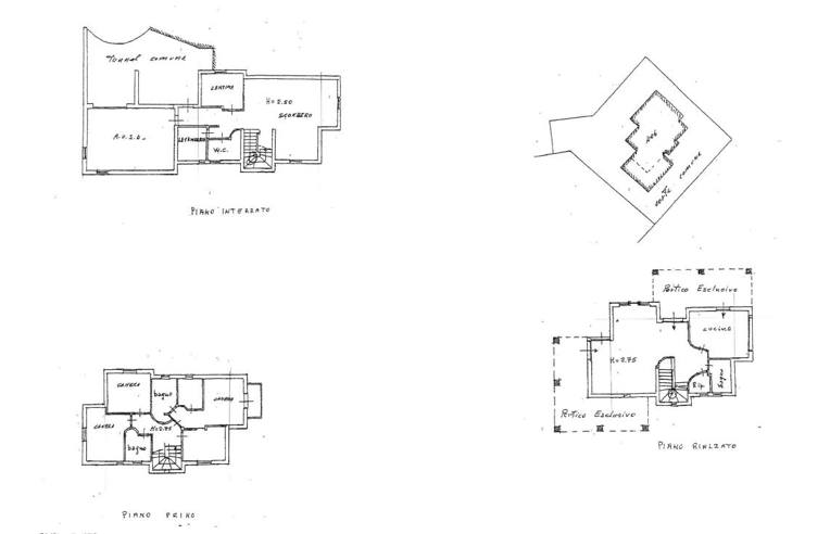
Nuvolento. Un'elegante villa singola in un tranquillo quartiere residenziale. Caratterizzata da spazi comodi e razionali la casa è distribuita su tre livelli. Il piano terra, in realtà un piano rialzato, vede la presenza di un ampio salone ben suddiviso con la zona pranzo e il salotto accanto al camino; su questo livello anche la cucina abitabile, un bagno con antibagno e un ripostiglio, tutti gli ambienti affacciano su ampi portici collegati al giardino. Al piano superiore tre camere da letto, una delle quali padronale con bagno privato e cabina armadio, un altro bagno e lo studio o quarta camera. Nell'interrato infine una accogliente taverna ben vivibile attrezzata con cucina e zona conversazione. Un ulteriore bagno, la comoda lavanderia e un ampio box auto completano questo livello. La casa si presenta in ottimo stato manutentivo (infissi esterni sostituiti nel dicembre 2025) con finiture di buon gusto e qualità, il giardino, ben piantumato, accentua la privacy in una zona del paese comunque ben abitata e servita.
Con impianto irrigazione, allarme, video sorveglianza
LEGGI TUTTO...
Con impianto irrigazione, allarme, video sorveglianza
DATI PRINCIPALI
- Riferimento
- 188460
- Contratto
- Vendita
- Tipologia
- Villa
- Superficie
- 480 mq
- Locali
- Più di 5
- Camere da letto
- 3
- Cucina
- Abitabile
- Bagni
- 4
- Totale piani
- 3
- Box/Posto auto
- Doppio
CARATTERISTICHE
Balcone
Terrazzo
Giardino privato
Ascensore
Arredato
COSTI
- Prezzo
- Trattativa Riservata
EFFICIENZA ENERGETICA
- Stato
- Abitabile
- Anno costruzione
- 1993
- Riscaldamento
- Autonomo
- Classe energetica
- C
A+
A
B
Classe energetica C
C
D
E
F
G
CONTATTA L'INSERZIONISTA
- Aggiornato al 15 dic 2025
Annunci immobiliari da Privati a Nuvolento
Comune di Nuvolento
Provincia di Brescia
Annunci simili
Trattativa Riservata
- 5+ locali
- 800 mq
