Privato Vende
€ 270.000
- Più di 5 locali
- 200 mq
- 3 bagni
Villa in Vendita da Privato a Sarzana
Indipendenza e comodità
In un contesto esclusivo, dove la natura incontra il design sostenibile, sorge una villetta indipendente in bio-edilizia, in fase di realizzazione (da completare tutto il piano abitativo), che promette di diventare un rifugio di lusso e tranquillità. Situata su un terreno pedecollinare, a pochi minuti a piedi dal centro storico di Sarzana, questa proprietà è perfetta per chi cerca privacy, bellezza e un lifestyle moderno ed ecologico.
Caratteristiche principali:
Classe Energetica A4: Progetto innovativo che garantisce altissimi standard di efficienza energetica, per un comfort a basso impatto ambientale.
Vista panoramica: La proprietà offre una vista spettacolare sulla piana del Magra, che si estende fino al mare, per godere di un panorama senza pari, in ogni stagione.
Posizione strategica: A soli 5 minuti a piedi dal bellissimo centro storico di Sarzana, una posizione che coniuga la tranquillità della campagna con la comodità dei servizi urbani.
Natura incontaminata: Un angolo di paradiso dove respirare i profumi delle essenze spontanee e ascoltare il cinguettio degli uccelli, mentre si è accolti dal fruscio delle fronde mosse dalle brezze giornaliere.
Percorsi ciclopedonali: La proprietà si affaccia sulla suggestiva pista ciclopedonale del Canale Lunense, ideale per passeggiate e attività sportive.
Dettagli del progetto in corso:
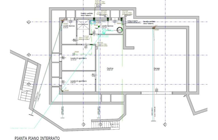
Piano seminterrato già realizzato: Un ampio piano seminterrato di oltre 150 mq, il cui prospetto principale è completamente fuori terra, è destinato a garage, cantina, lavanderia e locale tecnico. L'accesso al piano seminterrato avviene comodamente dal vialetto d'ingresso della proprietà.
Accesso al piano superiore: Il piano superiore (in bio-edilizia, ancora da costruire), che ospiterà l'abitazione principale, è raggiungibile sia tramite un ascensore interno che tramite l'ingresso esterno.
Spazi luminosi e funzionali: L'abitazione, in fase di costruzione, sarà composta da una zona giorno ampia e luminosa, con un soggiorno e una cucina open space, che si affacciano sulla sala da pranzo. La grande vetrata scorrevole permetterà di godere della vista panoramica sulla pianura sottostante, portando la natura all'interno della casa.
Bagno di servizio: Completano la zona giorno un elegante bagno di servizio, con tutti i sanitari moderni.
Zona notte: Un disimpegno separato garantisce l'accesso alla zona notte, dove troveranno spazio tre camere da letto e un bagno di dimensioni generose, pensato per il massimo del comfort.
Terreno e potenzialità creative:
La proprietà si completa con circa 1700 mq di terreno, offrendo tutto lo spazio necessario per dare libero sfogo alla tua creatività. Che tu voglia creare il tuo giardino da sogno, un'area per il relax o coltivare un orto, avrai a disposizione un ampio spazio da vivere. Perfetto anche per trascorrere momenti indimenticabili con amici o in famiglia, creando un ambiente unico che riflette il tuo stile di vita.
Questa è l’opportunità di vivere in un ambiente ecologico e di lusso, dove la modernità incontra il benessere naturale. La casa ideale per chi cerca un rifugio esclusivo, ma al contempo a pochi passi dalla vivace Sarzana e dalle bellezze della Liguria.
Un sogno che si sta trasformando in realtà.
Per maggiori informazioni, per visualizzare il progetto o prenotare una visita, non esitare a contattarci!
LEGGI TUTTO...
Caratteristiche principali:
Classe Energetica A4: Progetto innovativo che garantisce altissimi standard di efficienza energetica, per un comfort a basso impatto ambientale.
Vista panoramica: La proprietà offre una vista spettacolare sulla piana del Magra, che si estende fino al mare, per godere di un panorama senza pari, in ogni stagione.
Posizione strategica: A soli 5 minuti a piedi dal bellissimo centro storico di Sarzana, una posizione che coniuga la tranquillità della campagna con la comodità dei servizi urbani.
Natura incontaminata: Un angolo di paradiso dove respirare i profumi delle essenze spontanee e ascoltare il cinguettio degli uccelli, mentre si è accolti dal fruscio delle fronde mosse dalle brezze giornaliere.
Percorsi ciclopedonali: La proprietà si affaccia sulla suggestiva pista ciclopedonale del Canale Lunense, ideale per passeggiate e attività sportive.
Dettagli del progetto in corso:
Piano seminterrato già realizzato: Un ampio piano seminterrato di oltre 150 mq, il cui prospetto principale è completamente fuori terra, è destinato a garage, cantina, lavanderia e locale tecnico. L'accesso al piano seminterrato avviene comodamente dal vialetto d'ingresso della proprietà.
Accesso al piano superiore: Il piano superiore (in bio-edilizia, ancora da costruire), che ospiterà l'abitazione principale, è raggiungibile sia tramite un ascensore interno che tramite l'ingresso esterno.
Spazi luminosi e funzionali: L'abitazione, in fase di costruzione, sarà composta da una zona giorno ampia e luminosa, con un soggiorno e una cucina open space, che si affacciano sulla sala da pranzo. La grande vetrata scorrevole permetterà di godere della vista panoramica sulla pianura sottostante, portando la natura all'interno della casa.
Bagno di servizio: Completano la zona giorno un elegante bagno di servizio, con tutti i sanitari moderni.
Zona notte: Un disimpegno separato garantisce l'accesso alla zona notte, dove troveranno spazio tre camere da letto e un bagno di dimensioni generose, pensato per il massimo del comfort.
Terreno e potenzialità creative:
La proprietà si completa con circa 1700 mq di terreno, offrendo tutto lo spazio necessario per dare libero sfogo alla tua creatività. Che tu voglia creare il tuo giardino da sogno, un'area per il relax o coltivare un orto, avrai a disposizione un ampio spazio da vivere. Perfetto anche per trascorrere momenti indimenticabili con amici o in famiglia, creando un ambiente unico che riflette il tuo stile di vita.
Questa è l’opportunità di vivere in un ambiente ecologico e di lusso, dove la modernità incontra il benessere naturale. La casa ideale per chi cerca un rifugio esclusivo, ma al contempo a pochi passi dalla vivace Sarzana e dalle bellezze della Liguria.
Un sogno che si sta trasformando in realtà.
Per maggiori informazioni, per visualizzare il progetto o prenotare una visita, non esitare a contattarci!
DATI PRINCIPALI
- Riferimento
- 406260
- Contratto
- Vendita
- Tipologia
- Villa
- Superficie
- 200 mq
- Locali
- Più di 5
- Camere da letto
- 3
- Cucina
- Abitabile
- Bagni
- 3
- Piano
- 1 ° con ascensore
- Totale piani
- 2
- Box/Posto auto
- Doppio
CARATTERISTICHE
Balcone
Terrazzo
Giardino privato
Ascensore
Arredato
Cantina
COSTI
- Prezzo
- € 270.000,00
EFFICIENZA ENERGETICA
- Stato
- Nuovo/In costruzione
- Riscaldamento
- Autonomo
- Climatizzazione
- Si
- Classe energetica
- A4
Classe energetica A4
A4
A3
A2
A1
B
C
D
E
F
G
CONTATTA L'INSERZIONISTA
- Aggiornato al 03 apr 2026
