Privato Vende
Trattativa Riservata
- 3 locali
- 160 mq
- 2 bagni
Villetta a schiera in Vendita da Privato a Bagnacavallo
VENDO VILLETTA A SCHIERA IN COSTRUZIONE - GLORIE
A Glorie di Ravenna, ATTUALMENTE IN STATO GREZZO: La proprietà, attualmente in fase di realizzazione con struttura già completata e tetto ultimato, rappresenta un’opportunità unica: i lavori sono già iniziati e l’acquirente ha la possibilità di scegliere finiture, disposizione degli spazi e dettagli interni, creando così una casa su misura secondo i propri gusti e le proprie esigenze.
in contesto tranquillo e riservato, proponiamo in vendita una villetta a schiera di ampia metratura, perfetta per chi desidera una casa moderna e personalizzabile senza rinunciare alla serenità.
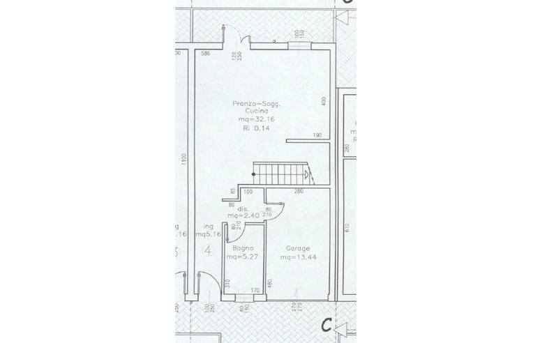
L’immobile si sviluppa su tre livelli per una superficie complessiva di circa 160 mq, ed è dotato di giardino privato sia sul fronte che sul retro, ideale per momenti di relax all’aperto, oltre a garage direttamente collegato all’abitazione.
Il prezzo indicato si riferisce all’immobile allo stato grezzo. Con l’avanzamento dei lavori, il valore sarà progressivamente aggiornato fino al completamento, in base allo stato di finitura raggiunto.
LEGGI TUTTO...
in contesto tranquillo e riservato, proponiamo in vendita una villetta a schiera di ampia metratura, perfetta per chi desidera una casa moderna e personalizzabile senza rinunciare alla serenità.
L’immobile si sviluppa su tre livelli per una superficie complessiva di circa 160 mq, ed è dotato di giardino privato sia sul fronte che sul retro, ideale per momenti di relax all’aperto, oltre a garage direttamente collegato all’abitazione.
Il prezzo indicato si riferisce all’immobile allo stato grezzo. Con l’avanzamento dei lavori, il valore sarà progressivamente aggiornato fino al completamento, in base allo stato di finitura raggiunto.
DATI PRINCIPALI
- Riferimento
- 415798
- Contratto
- Vendita
- Tipologia
- Villetta a schiera
- Superficie
- 160 mq
- Locali
- 3
- Camere da letto
- 3
- Cucina
- Abitabile
- Bagni
- 2
- Piano
- Su più livelli
- Totale piani
- 3
- Box/Posto auto
- Posto auto coperto
CARATTERISTICHE
Balcone
Terrazzo
Giardino privato
Ascensore
COSTI
- Prezzo
- Trattativa Riservata
EFFICIENZA ENERGETICA
- Stato
- Nuovo/In costruzione
- Riscaldamento
- Autonomo
- Climatizzazione
- Si
- Classe energetica
- A
A+
Classe energetica A
A
B
C
D
E
F
G
MAPPA
CONTATTA L'INSERZIONISTA
- Annuncio del 29 apr 2026
