Privato Vende
€ 295.000
- Più di 5 locali
- 660 mq
- 4 bagni
Villa in Vendita da Privato a Altamura
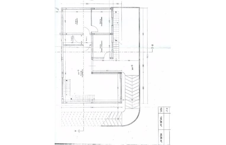
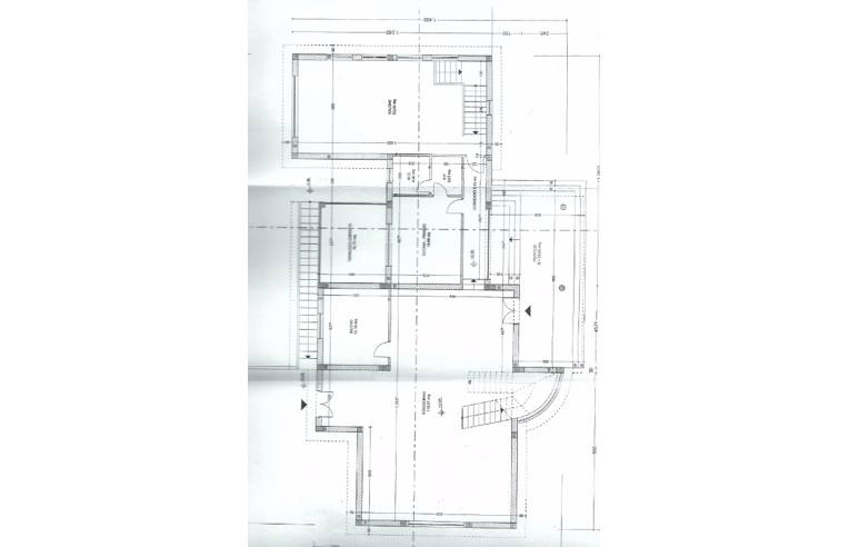
Villa a rustico in Altamura vicino all'ospedale nuovo
Si trova su via Gravina prima dell'ospedale Strada Lama Sambuco Villa in costruzione con progetto piano seminterrato mq. 290 di coperto e mq 400 circa di scoperto per garage, piano rialzato mq. 290, possibilità di fare un primo piano per mq. 160 oltre a mq 1.100 di terreno recintato in cls. Parte del fabbricato è commerciale e artigianale. Potete contattarmi al
DATI PRINCIPALI
- Riferimento
- 113733
- Contratto
- Vendita
- Tipologia
- Villa
- Superficie
- 660 mq
- Locali
- Più di 5
- Camere da letto
- Più di 5
- Cucina
- Abitabile
- Bagni
- 4
- Totale piani
- 3
- Box/Posto auto
- Doppio
CARATTERISTICHE
Balcone
Terrazzo
Giardino privato
Ascensore
Cantina
COSTI
- Prezzo
- € 295.000,00
EFFICIENZA ENERGETICA
- Stato
- Nuovo/In costruzione
- Anno costruzione
- 2007
- Riscaldamento
- Autonomo
- Climatizzazione
- Predisposizione
CONTATTA L'INSERZIONISTA
- Aggiornato al 11 dic 2025
MUTUO
Annunci immobiliari da Privati a Altamura
Comune di Altamura
- Vendita ville singole e a schiera senza provvigioni Altamura
- Vendita case senza intermediari Altamura
Provincia di Bari
Annunci simili
Trattativa Riservata
- 5+ locali
- 350 mq
