Privato Vende
€ 230.000
- Più di 5 locali
- 270 mq
- 4 bagni
Villetta a schiera in Vendita da Privato a Mira
Villa alta prestazione energetica - CasaClima
Progetto e costruzione di villa ad alta prestazione energetica, strutture portanti per tetto e solai in legno lamellare a vista , pareti XLAM , copertura ventilata, massima personalizzazione di progettazione e divisione degli spazi.
Certificazione antisismica e collaudo classe energetica; standard CasaClima
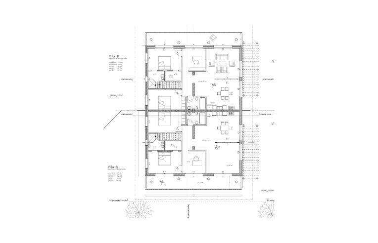
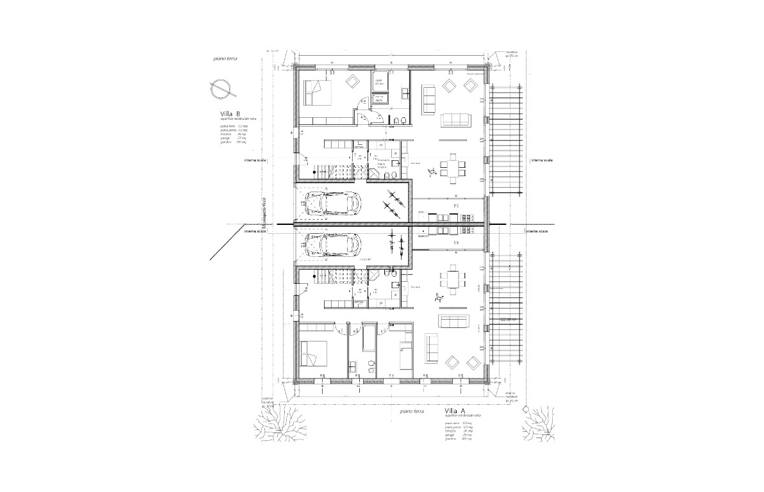
Possibile frazionamento in 2 unita’ per ciascuna villa
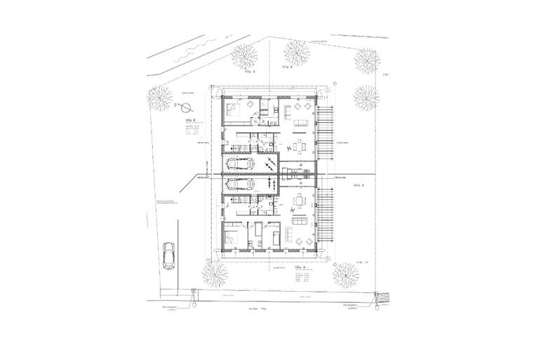
Zona adicente all’ingresso della Laguna Sud e darsena per alaggio barche;
in posizione strategica tra Centro Nave de Vero e accesso autostrade
Spazi utili : piano terra 125 mq / primo 125 mq / garage 23 mq / giardino 480 – 530 mq / terrazza
Progettazione personalizzabile, accessibilita’ per disabili
Costruzione a secco con strutture progettate a misura e prefabricate, tempi di esecuzione 12 mesi dalla firma del preliminare
1) Vendita finito esterno
Pareti intonacate - serramenti esterni e soglie – solai interni (pronti per massetto) – copertura completa – canne di ventilazione – canne fumarie - colonne scarico – rete scarichi esterne – cavidotti e passaggi per utenze – pareti perimetrali al grezzo per alloggiamento impiantistica (da rivestire con cartongesso) – recinzioni – cancelli – scala interno in metallo (da rivestire)
2) Vendita finito esterno / interno (vedi capitolato)
Divisori interni - pavimentazioni finite – rivestimento scale – porte interne – bagni finiti (vedi capitolato) – riscaldamento radiante – predisposizione per condizionamneto – impianti elettrici (vedi capitolato) – reti scarico – rete gas
Impianto di riscaldamento / condizionamento: Prezzo da concordare in funzione di scelta (pompa di calore aria / aria, pompa di calore a gas / caldaia a gas / generatore commune a 2 unita’ oppure autonomo …
Possibile geotermia; parte di edificio bivilla su terreno indipendente
Privato , ingegnere professionista vende e costruisce, rapporto diretto e garantito
Prezzo a partire da 230.000 euro
LEGGI TUTTO...
Certificazione antisismica e collaudo classe energetica; standard CasaClima
Possibile frazionamento in 2 unita’ per ciascuna villa
Zona adicente all’ingresso della Laguna Sud e darsena per alaggio barche;
in posizione strategica tra Centro Nave de Vero e accesso autostrade
Spazi utili : piano terra 125 mq / primo 125 mq / garage 23 mq / giardino 480 – 530 mq / terrazza
Progettazione personalizzabile, accessibilita’ per disabili
Costruzione a secco con strutture progettate a misura e prefabricate, tempi di esecuzione 12 mesi dalla firma del preliminare
1) Vendita finito esterno
Pareti intonacate - serramenti esterni e soglie – solai interni (pronti per massetto) – copertura completa – canne di ventilazione – canne fumarie - colonne scarico – rete scarichi esterne – cavidotti e passaggi per utenze – pareti perimetrali al grezzo per alloggiamento impiantistica (da rivestire con cartongesso) – recinzioni – cancelli – scala interno in metallo (da rivestire)
2) Vendita finito esterno / interno (vedi capitolato)
Divisori interni - pavimentazioni finite – rivestimento scale – porte interne – bagni finiti (vedi capitolato) – riscaldamento radiante – predisposizione per condizionamneto – impianti elettrici (vedi capitolato) – reti scarico – rete gas
Impianto di riscaldamento / condizionamento: Prezzo da concordare in funzione di scelta (pompa di calore aria / aria, pompa di calore a gas / caldaia a gas / generatore commune a 2 unita’ oppure autonomo …
Possibile geotermia; parte di edificio bivilla su terreno indipendente
Privato , ingegnere professionista vende e costruisce, rapporto diretto e garantito
Prezzo a partire da 230.000 euro
DATI PRINCIPALI
- Riferimento
- 267202
- Contratto
- Vendita
- Tipologia
- Villetta a schiera
- Superficie
- 270 mq
- Locali
- Più di 5
- Camere da letto
- 4
- Cucina
- Abitabile
- Bagni
- 4
- Piano
- Su più livelli
- Totale piani
- 2
- Box/Posto auto
- Singolo
CARATTERISTICHE
Balcone
Terrazzo
Giardino privato
Ascensore
Arredato
COSTI
- Prezzo
- € 230.000,00
EFFICIENZA ENERGETICA
- Stato
- Nuovo/In costruzione
- Riscaldamento
- Autonomo
- Climatizzazione
- Predisposizione
- Classe energetica
- A4
- IPE
- 14,00 kWh/m²a
14,00 kWh/m²a | Classe energetica A4
A4
A3
A2
A1
B
C
D
E
F
G
MAPPA
CONTATTA L'INSERZIONISTA
- Aggiornato al 25 ott 2025
MUTUO
Annunci immobiliari da Privati a Mira
Comune di Mira
Provincia di Venezia
Annunci simili
€ 295.000
- 5+ locali
- 210 mq
