Privato Vende
Trattativa Riservata
- Più di 5 locali
- 206 mq
- 2 bagni
Villetta a schiera in Vendita da Privato a Catania
villa bifamiliare
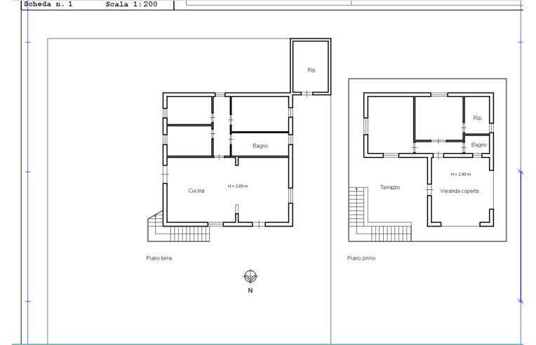
Propongo in vendita zona vaccarizzo /playa di catania (a 15minuti da aereoporto
fontanarossa e zona industriale )villa bifamiliare a schiera in zona tranquilla ,silenziosa e fresca a 1km dal mare e vicina ai lidi piu' in voga della playa .l'immobile ha una superficie complessiva di 206 metri quadri e comprende un totale di 9,5 locali distribuiti tra piano terra e primo con due bagni(uno per piano)Il bagno sotto dispone di vasca idromassaggio . La villa presenta una cucina/soggiorno in muratura con camino funzionante e spazi ampiamente distribuiti per garantire un buon utilizzo degli ambienti. La casa e' molto luminosa. E' possibile ricavare due appartamenti perche' l'immobile gode di due ingressi indipendenti , uno al piano inferiore e uno a quello superiore .Le caratteristiche esterne includono un terrazzo grande (in parte chiuso a vetri con predisposizione alla realizzazione di una cucina ), un balcone a giro, un giardino, posti auto interni e una piscina che al momento e' coperta ma che ,volendo ,si puo' ripristinare, oltre a un magazzino/deposito. Gli infissi sono in doppio vetro con strutture in metallo. Il riscaldamento è assente ma e' presente il camino che riscalda tutto il piano inferiore. L'immobile è in buono stato di manutenzione ed è abitabile, con costruzione risalente al 1980. La classe energetica dell'immobile è G. La proprietà è intera. Contattami per qualunque informazione, foto o per prenotare una visita. No agenzie immobiliari ,curiosi e perditempo.
LEGGI TUTTO...
fontanarossa e zona industriale )villa bifamiliare a schiera in zona tranquilla ,silenziosa e fresca a 1km dal mare e vicina ai lidi piu' in voga della playa .l'immobile ha una superficie complessiva di 206 metri quadri e comprende un totale di 9,5 locali distribuiti tra piano terra e primo con due bagni(uno per piano)Il bagno sotto dispone di vasca idromassaggio . La villa presenta una cucina/soggiorno in muratura con camino funzionante e spazi ampiamente distribuiti per garantire un buon utilizzo degli ambienti. La casa e' molto luminosa. E' possibile ricavare due appartamenti perche' l'immobile gode di due ingressi indipendenti , uno al piano inferiore e uno a quello superiore .Le caratteristiche esterne includono un terrazzo grande (in parte chiuso a vetri con predisposizione alla realizzazione di una cucina ), un balcone a giro, un giardino, posti auto interni e una piscina che al momento e' coperta ma che ,volendo ,si puo' ripristinare, oltre a un magazzino/deposito. Gli infissi sono in doppio vetro con strutture in metallo. Il riscaldamento è assente ma e' presente il camino che riscalda tutto il piano inferiore. L'immobile è in buono stato di manutenzione ed è abitabile, con costruzione risalente al 1980. La classe energetica dell'immobile è G. La proprietà è intera. Contattami per qualunque informazione, foto o per prenotare una visita. No agenzie immobiliari ,curiosi e perditempo.
DATI PRINCIPALI
- Riferimento
- 413951
- Contratto
- Vendita
- Tipologia
- Villetta a schiera
- Superficie
- 206 mq
- Locali
- Più di 5
- Camere da letto
- 3
- Cucina
- Abitabile
- Bagni
- 2
- Piano
- Su più livelli
- Totale piani
- 2
- Box/Posto auto
- Posto auto scoperto
CARATTERISTICHE
Balcone
Terrazzo
Giardino privato
Ascensore
Cantina
COSTI
- Prezzo
- Trattativa Riservata
EFFICIENZA ENERGETICA
- Stato
- Abitabile
- Anno costruzione
- 1980
- Riscaldamento
- Autonomo
- Climatizzazione
- No
- Classe energetica
- G
A+
A
B
C
D
E
F
Classe energetica G
G
CONTATTA L'INSERZIONISTA
- Annuncio del 20 mar 2026
Annunci immobiliari da Privati a Catania
Comune di Catania
- Vendita ville singole e a schiera senza intermediari Catania
- Case in vendita da privato Catania
- Vendita case senza provvigioni zona Vaccarizzo, Catania
Provincia di Catania
Annunci simili
€ 295.000
- 5+ locali
- 220 mq
€ 265.000
- 5+ locali
- 240 mq
