Costruttore Vende
€ 250.000
- 5 locali
- 128 mq
- 2 bagni
Villa in Vendita diretta da Costruttore a Baricella
VILLA CLASSE A e A+
villetta stile moderno antisismica, in CLASSE A (optional A+)
struttura antisismica costruita in pareti portanti in legno massiccio, cappotto termico ad alta densita per un ottimale risparmio energetico e una perfetta insonorizzazione, porte/finestre blindate con tripli vetri e doppia camera, volendo travi a vista a scelta, tetto ventilato e coibentato,
impianto riscaldamentoa pavimento a pompa di calore, caminetto o condensazione a scelta, impianto fotovoltaico, impianto allarme, zanzariere, scuri o tapparelle elettriche, cancello carraio automatico,completamente recintata
e lotto di terreno di 550 mq. comoda ai servizi del paese , zona residenziale molto tranquilla lotto su strada a fondo chiuso, parcheggio.
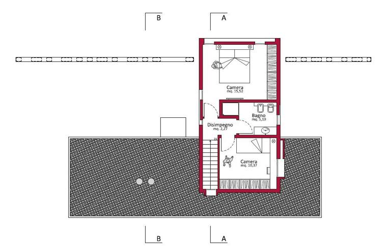
disposta come da planimetria o eventualmente si possono variare le stanze e anche la tipologia e prospettiva.
(Costo di costruzione (escluso terreno e spese tecniche) . 140000 €.
costo chiavi in mano compreso terreno e spese tecniche
250000 €
disponibili altre soluzioni di metratura piu piccola, piu grande o altre soluzioni sia come disposizione e su lotti.
abbiamo a disposizioni lotti edificabili a partire da €. 50.000 in su, in molti comuni e frazioni.
LEGGI TUTTO...
struttura antisismica costruita in pareti portanti in legno massiccio, cappotto termico ad alta densita per un ottimale risparmio energetico e una perfetta insonorizzazione, porte/finestre blindate con tripli vetri e doppia camera, volendo travi a vista a scelta, tetto ventilato e coibentato,
impianto riscaldamentoa pavimento a pompa di calore, caminetto o condensazione a scelta, impianto fotovoltaico, impianto allarme, zanzariere, scuri o tapparelle elettriche, cancello carraio automatico,completamente recintata
e lotto di terreno di 550 mq. comoda ai servizi del paese , zona residenziale molto tranquilla lotto su strada a fondo chiuso, parcheggio.
disposta come da planimetria o eventualmente si possono variare le stanze e anche la tipologia e prospettiva.
(Costo di costruzione (escluso terreno e spese tecniche) . 140000 €.
costo chiavi in mano compreso terreno e spese tecniche
250000 €
disponibili altre soluzioni di metratura piu piccola, piu grande o altre soluzioni sia come disposizione e su lotti.
abbiamo a disposizioni lotti edificabili a partire da €. 50.000 in su, in molti comuni e frazioni.
DATI PRINCIPALI
- Riferimento
- 18498
- Contratto
- Vendita
- Tipologia
- Villa
- Superficie
- 128 mq
- Locali
- 5
- Camere da letto
- 2
- Cucina
- Abitabile
- Bagni
- 2
- Piano
- Su più livelli
- Box/Posto auto
- Singolo
CARATTERISTICHE
Balcone
Terrazzo
Giardino privato
Ascensore
Arredato
COSTI
- Prezzo
- € 250.000,00
EFFICIENZA ENERGETICA
- Stato
- Nuovo/In costruzione
- Riscaldamento
- Autonomo
- Climatizzazione
- Si
- Classe energetica
- A
- IPE
- 30,00 kWh/m²a
A+
30,00 kWh/m²a | Classe energetica A
A
B
C
D
E
F
G
CONTATTA L'INSERZIONISTA
- Aggiornato al 18 gen 2026
MUTUO
Annunci immobiliari da Privati a Baricella
Comune di Baricella
- Ville singole e a schiera in vendita senza provvigioni Baricella
- Case in vendita senza agenzia Baricella
Provincia di Bologna
Annunci simili
€ 1.400.000
- 5+ locali
- 400 mq
