Privato Vende
Trattativa Riservata
- 5 locali
- 300 mq
- 2 bagni
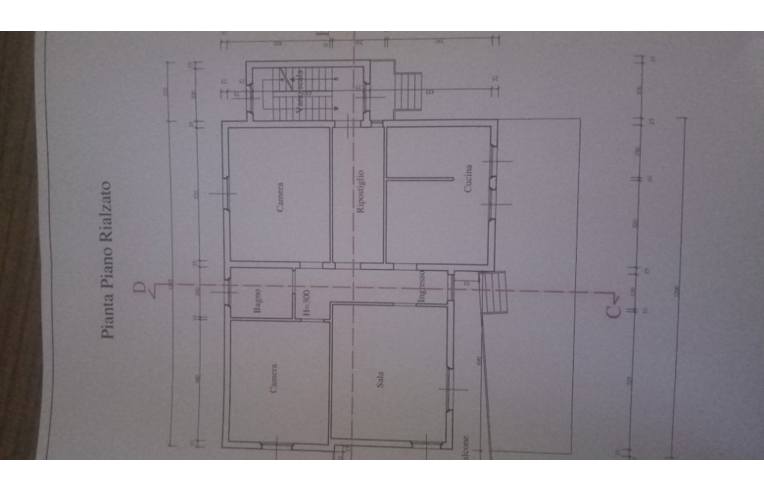
Villa in Vendita da Privato a Langhirano
Villa indipendente con vista panoramica
Strada Riano, in zona verde, tranquilla e comoda al centro, vendesi casa indipendente con giardino di proprietà. L'abitazione è disposta su due livelli: è composta a piano rialzato da ingresso, spazioso e luminoso soggiorno, sala pranzo, cucina abitabile, balcone accessibile dagli ambienti della zona giorno, corridoio, tre camere da letto, bagno e un balcone.Idem al primo piano.Nel seminterrato garage, due cantine molto ampie oltre a una immensa taverna.Centrale termica esterna.
Completa la proprietà il giardino circostante.
LEGGI TUTTO...
Completa la proprietà il giardino circostante.
DATI PRINCIPALI
- Riferimento
- 356599
- Contratto
- Vendita
- Tipologia
- Villa
- Superficie
- 300 mq
- Locali
- 5
- Camere da letto
- 4
- Cucina
- Abitabile
- Bagni
- 2
- Piano
- Su più livelli
- Box/Posto auto
- Doppio
CARATTERISTICHE
Balcone
Terrazzo
Giardino privato
Ascensore
Arredato
Cantina
COSTI
- Prezzo
- Trattativa Riservata
EFFICIENZA ENERGETICA
- Stato
- Abitabile
- Riscaldamento
- Autonomo
- Climatizzazione
- No
- Classe energetica
- F
A+
A
B
C
D
E
Classe energetica F
F
G
CONTATTA L'INSERZIONISTA
- Aggiornato al 29 apr 2026
Annunci immobiliari da Privati a Langhirano
Comune di Langhirano
- Ville singole e a schiera in vendita da privati Langhirano
- Vendita case senza intermediari Langhirano
