Privato Vende
€ 80.000
- Più di 5 locali
- 190 mq
- 2 bagni
Villa in Vendita da Privato a Montemaggiore Belsito
Villa - Montemaggiore Belsito
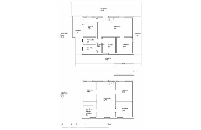
Villa rustica con mansarda abitabile (tot. mq 190) ideale per soggiorno stagionale, discrete condizioni, in zona collinare a destinazione agricola. Collocazione amena e salubre e notevole dal punto di vista panoramico. Terreno (mq 5860) con alberi di ulivo, di pino, di fico, di gelsi, piante di ficodindia ed alloro, palme. Recinto in rete e strada in cemento battuto di collegamento con strada sottostante. Terrazzo intorno all’intero perimetro (tot mq 100); fabbricazione rustica adiacente destinata a magazzino (mq 40); piccolo locale adiacente a uso tecnico; cisterna per la raccolta dell’acqua piovana; ampia disponibilità di parcheggio; angolo barbecue in mattone; 1.3 km da centro abitato; prossimità a zone turistiche (Cefalù) e attrazioni naturali (Bosco Favara). € 80.000. Telefonare Gullo, .
LEGGI TUTTO...
DATI PRINCIPALI
- Riferimento
- 5447
- Contratto
- Vendita
- Tipologia
- Villa
- Superficie
- 190 mq
- Locali
- Più di 5
- Camere da letto
- 5
- Cucina
- Abitabile
- Bagni
- 2
- Piano
- 2 °
CARATTERISTICHE
Giardino privato
COSTI
- Prezzo
- € 80.000,00
EFFICIENZA ENERGETICA
- Stato
- Abitabile
- Riscaldamento
- Assente
- Classe energetica
- G
A+
A
B
C
D
E
F
Classe energetica G
G
CONTATTA L'INSERZIONISTA
- Aggiornato al 20 feb 2026
MUTUO
Annunci immobiliari da Privati a Montemaggiore Belsito
Comune di Montemaggiore Belsito
- Vendita ville singole e a schiera da privati Montemaggiore Belsito
- Vendita case senza agenzia Montemaggiore Belsito
