Privato Vende
€ 269.000
- Più di 5 locali
- 480 mq
- 3 bagni
Villa in Vendita da Privato a Adria
Villa nel Parco del Delta del Po
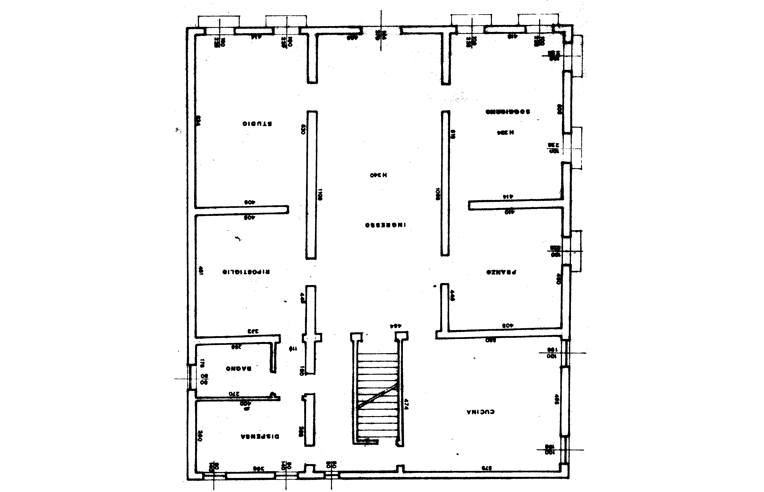
Grande villa antica con cinque camere da letto matrimoniali, tre bagni, due salotti, tre studi, una grande cucina attrezzata con camino e una grande cantina con travi a vista che può essere utilizzata per riunioni conviviali e come deposito.
All'interno molti elementi di pregio come il grande salone d’entrata decorato con stucchi in stile Liberty datati 1912, i pavimenti in legno del secondo e del primo piano, l’affresco in una delle camere da letto, gli otto poggioli di fine Ottocento in ghisa appena restaurati, il camino e le scale interna ed esterna in trachite, il grande giardino.
La foto in bianco e nero mostra l'aspetto a inizio novecento.
Da poco tempo tutti gli scuri sono stati tutti restaurati portandoli a nuovo o sostituiti con nuovi ove il restauro si presentava difficoltoso.
La villa si trova a Bottrighe (Ro) a 5 km e 5 minuti da Adria all’interno del parco del Delta del Po, in vicinanza dell’Oasi naturalistica di Panarella e a meno di 30 minuti dal mare. Il paese è dotato di tutti i servizi.
All’esterno il giardino (foto) con grandi alberi (due magnolie, due ciliegi, due giuggioli, più varie piante fiorite) di circa 500 mq si sviluppa su tre lati.
La ristrutturazione ultimata nel 1993 ha mantenuto le caratteristiche originali, come ad esempio le finestre originali in legno pitch pine che sono state restaurate e dotate di vetri a camera. Sono stati eseguiti lavori di risanamento come il doppio taglio e l’uso di malte isolanti. È stato rifatto il tetto. Sono stati adeguati gli impianti. Sono necessari interventi di scarsa entità.
L'immobile presenta la possibilità di essere diviso in due o più comodi appartamenti indipendenti tra loro. Allo scopo l'impianto di riscaldamento è già diviso in tre zone e la disposizione degli ambienti interni con le relative entrate si presta ad un frazionamento.
LEGGI TUTTO...
All'interno molti elementi di pregio come il grande salone d’entrata decorato con stucchi in stile Liberty datati 1912, i pavimenti in legno del secondo e del primo piano, l’affresco in una delle camere da letto, gli otto poggioli di fine Ottocento in ghisa appena restaurati, il camino e le scale interna ed esterna in trachite, il grande giardino.
La foto in bianco e nero mostra l'aspetto a inizio novecento.
Da poco tempo tutti gli scuri sono stati tutti restaurati portandoli a nuovo o sostituiti con nuovi ove il restauro si presentava difficoltoso.
La villa si trova a Bottrighe (Ro) a 5 km e 5 minuti da Adria all’interno del parco del Delta del Po, in vicinanza dell’Oasi naturalistica di Panarella e a meno di 30 minuti dal mare. Il paese è dotato di tutti i servizi.
All’esterno il giardino (foto) con grandi alberi (due magnolie, due ciliegi, due giuggioli, più varie piante fiorite) di circa 500 mq si sviluppa su tre lati.
La ristrutturazione ultimata nel 1993 ha mantenuto le caratteristiche originali, come ad esempio le finestre originali in legno pitch pine che sono state restaurate e dotate di vetri a camera. Sono stati eseguiti lavori di risanamento come il doppio taglio e l’uso di malte isolanti. È stato rifatto il tetto. Sono stati adeguati gli impianti. Sono necessari interventi di scarsa entità.
L'immobile presenta la possibilità di essere diviso in due o più comodi appartamenti indipendenti tra loro. Allo scopo l'impianto di riscaldamento è già diviso in tre zone e la disposizione degli ambienti interni con le relative entrate si presta ad un frazionamento.
DATI PRINCIPALI
- Riferimento
- 409547
- Contratto
- Vendita
- Tipologia
- Villa
- Superficie
- 480 mq
- Locali
- Più di 5
- Camere da letto
- 5
- Bagni
- 3
- Totale piani
- 3
- Box/Posto auto
- Doppio
CARATTERISTICHE
Balcone
Terrazzo
Giardino privato
Semi-arredato
Cantina
COSTI
- Prezzo
- € 269.000,00
EFFICIENZA ENERGETICA
- Riscaldamento
- Autonomo
- IPE
- 334,42 kWh/m²a
CONTATTA L'INSERZIONISTA
- Aggiornato al 19 feb 2026
