7 annunci di appartamenti
Più rilevante
- Più rilevante
- Più recente
- Meno recente
- Più costoso
- Meno costoso
- Piace di più
- Piace di meno
€ 50.000
Trilocale da Privato a Altofonte
Casetta AltofonteGraziosa casetta di mq 55 buono stato abitabile 3 vani più 1 wc,mansarda uso ripostiglio di pari qua ...
- 3 locali
- 55 mq
€ 85.000
Appartamento da Privato a Altofonte
Appartamento PanoramicoZona giorno: Spazio esterno di pertinenza, saloncino con camino, soggiorno/cucina, doppio servizio ...
- 5 locali
- 100 mq
- 2 bagni
€ 120.000
Quadrilocale da Privato a Altofonte
Appartamento totalmente ristrutturatoAppartamento totalmente ristrutturato e arredato posto al primo piano composto da ingresso un ampia ...
- 4 locali
- 100 mq
€ 20.000
Monolocale da Privato a Altofonte
Piano terraPrezzo non trattabile...locale vicino piazza di Altofonte, uso abitazione , ho altro.. ...
- 1 locale
- 30 mq
€ 18.000
Bilocale da Privato a Altofonte, Frazione Blandino
AppartamentinoAppartamentino piano terra due locali wc cucinino per complessivi 27 mq da ristrutturare. ...
- 2 locali
- 27 mq
€ 160.000
Quadrilocale da Privato a Altofonte
AppartamentoVendo appartamento ristrutturato di 100mq 4 vani più 2 servizi x maggiori informazioni tel. 33963440 ...
- 4 locali
- 100 mq
€ 235.000
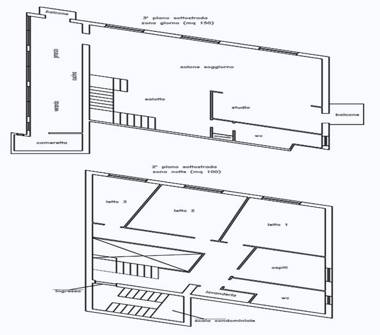
Appartamento da Privato a Altofonte
Appartamento AltofonteAltofonte : Via Vittorio Emanuele, 186, - subito dopo l'ingresso paese; descrizione: Appartamento ...
- 5+ locali
- 250 mq
- 2 bagni
