6 annunci di appartamenti
€ 385.000
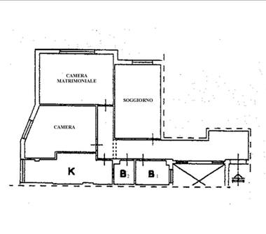
Trilocale da Privato a Roma, Zona Laurentina, Via Edoardo Amaldi 314
Trilocale via Edoardo Amaldi 314, Fonte Laurentina, Roma - N
Nel quartiere di Fonte Laurentina, si propone la vendita di un trilocale di design di 104 mq commerc ...
- 3 locali
- 104 mq
Conosci i nostri servizi di visibilità? Scoprili subito
€ 270.000
Trilocale da Privato a Roma, Zona Nomentano, Via Carlo Arturo Jemolo 312
Vendesi appartamentoZona giorno: ingresso; saloncino; cucina abitabile con balcone; antibagno +bagno con doccia con balc ...
- 3 locali
- 80 mq
€ 175.000
Bilocale da Privato a Roma, Zona Nomentano
APPARTAMENTO INDIPENDENTEAppartamento indipendente via Nomentana anche uso investimento con 180mq di terreno con possibilità ...
- 2 locali
- 55 mq
- 1 bagno
€ 490.000
Trilocale da Privato a Roma, Zona Nomentano
Trilocale via Tripoli 28, RomaPRIVATO VENDE Appartamento mq. 120 Ristrutturato con Cura Composto da Salone, Cucina, 2 Ampie Camere ...
- 3 locali
- 120 mq
- 2 bagni
€ 340.000
Appartamento da Privato a Roma, Zona Nomentano
appartamento 100 mq 7 locali con finestraappartamento centrale al 2°piano con ascensore suddiviso ingresso , corridoio con disimpegni 7 camer ...
- 5+ locali
- 100 mq
- 3 bagni
€ 440.000
Trilocale da Privato a Roma, Zona Nomentano
AMPIO TRILOCALE CENTRALE RISTRUTTURATO E LUMINOSOCONCA D'ORO : Ampio trilocale di 100 mq. al 3° piano con ascensore, completamente ristrutturato, lu ...
- 3 locali
- 100 mq
- 2 bagni
€ 760.000
Trilocale da Privato a Roma, Zona Nomentano
Residenza Como, la casa dei tuoi sogniAppartamento situato al Piano Secondo ed è composto da: ingresso, soggiorno con cucina open space du ...
- 3 locali
- 95 mq
- 2 bagni
