Privato Vende
€ 120
- Più di 5 locali
- 120 mq
- 1 bagno
Appartamento in Vendita da Privato a Ardea
Splendido quadrilocale con giardino di 75 Mq c.a. a Ardea
A Lido dei Pini, Splendido quadrilocale con giardino di 75 Mq c.a. nel Comune di Ardea, a 400 mt dal mare con esposizione SUD-EST e sole tutto il giorno.
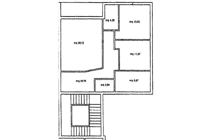
La soluzione di 120 mq commerciali già abitabile, si trova al piano terra di un piccolo e grazioso condominio di sei unità immobiliari con un comodissimo e bello viale di ingresso. Edificio ad uso esclusivamente residenziale, con scala unica, composto da un piano terra e primo piano.
La zona, Lido dei Pini, risulta strategica e appetibile, vista la vicinanza al centro abitato e al mare. È animata d’estate e ben frequentata d’inverno; è molto ben servita, sia da mezzi pubblici, con fermata Cotral a ridosso dell’ingresso condominiale, sia da servizi alimentari e negozi vari in pochi metri, inclusa una farmacia, un supermercato, parco giochi per bambini; tutti raggiungibili a piedi.
si compone di ampio ingresso, corridoio, un grande salone con cucina a parete, un bagno, un ripostiglio di 4 mq, due camere matrimoniali e una cameretta, una loggia di 9 mq prospicente il salone e il giardino. Ben illuminato.
Oltre all’ingresso condominiale tramite cancello carrabile, dispone di un secondo ingresso privato; e ha la possibilità di realizzare un cancello carrabile nel giardino. Riscaldamento autonomo. Allaccio in fogna, idrico ed elettrico. Già fornito di fibra FFTTH, videosorveglianza con Verisure.
Categoria Catastale A/3 cl 4 vani 6,5
Ape: classe energetica E 81.31 kWh/m² anno
Spese condominiali: 25 euro al mese
Altezza utile dell'immobile 3m.
non è consentito contattare questo inserzionista con servizi o altri interessi commerciali
LEGGI TUTTO...
La soluzione di 120 mq commerciali già abitabile, si trova al piano terra di un piccolo e grazioso condominio di sei unità immobiliari con un comodissimo e bello viale di ingresso. Edificio ad uso esclusivamente residenziale, con scala unica, composto da un piano terra e primo piano.
La zona, Lido dei Pini, risulta strategica e appetibile, vista la vicinanza al centro abitato e al mare. È animata d’estate e ben frequentata d’inverno; è molto ben servita, sia da mezzi pubblici, con fermata Cotral a ridosso dell’ingresso condominiale, sia da servizi alimentari e negozi vari in pochi metri, inclusa una farmacia, un supermercato, parco giochi per bambini; tutti raggiungibili a piedi.
si compone di ampio ingresso, corridoio, un grande salone con cucina a parete, un bagno, un ripostiglio di 4 mq, due camere matrimoniali e una cameretta, una loggia di 9 mq prospicente il salone e il giardino. Ben illuminato.
Oltre all’ingresso condominiale tramite cancello carrabile, dispone di un secondo ingresso privato; e ha la possibilità di realizzare un cancello carrabile nel giardino. Riscaldamento autonomo. Allaccio in fogna, idrico ed elettrico. Già fornito di fibra FFTTH, videosorveglianza con Verisure.
Categoria Catastale A/3 cl 4 vani 6,5
Ape: classe energetica E 81.31 kWh/m² anno
Spese condominiali: 25 euro al mese
Altezza utile dell'immobile 3m.
non è consentito contattare questo inserzionista con servizi o altri interessi commerciali
DATI PRINCIPALI
- Riferimento
- 407112
- Contratto
- Vendita
- Tipologia
- Appartamento
- Superficie
- 120 mq
- Locali
- Più di 5
- Camere da letto
- 3
- Cucina
- Angolo cottura
- Bagni
- 1
- Piano
- Piano terra
- Totale piani
- 2
- Box/Posto auto
- No
CARATTERISTICHE
Balcone
Terrazzo
Giardino privato
Ascensore
Arredato
Cantina
COSTI
- Prezzo
- € 120,00
EFFICIENZA ENERGETICA
- Stato
- Abitabile
- Anno costruzione
- 1961
- Riscaldamento
- Autonomo
- Climatizzazione
- No
- Classe energetica
- E
- IPE
- 81,00 kWh/m²a
A+
A
B
C
D
81,00 kWh/m²a | Classe energetica E
E
F
G
CONTATTA L'INSERZIONISTA
- Aggiornato al 21 apr 2026
