Privato Vende
Trattativa Riservata
- Più di 5 locali
- 216 mq
- 3 bagni
Villa in Vendita da Privato a Reggio Emilia
VILLA SINGOLA A CASALE DI RIVALTA
SOLO PRIVATI, NO AGENZIE, TRATTATIVA RISERVATA
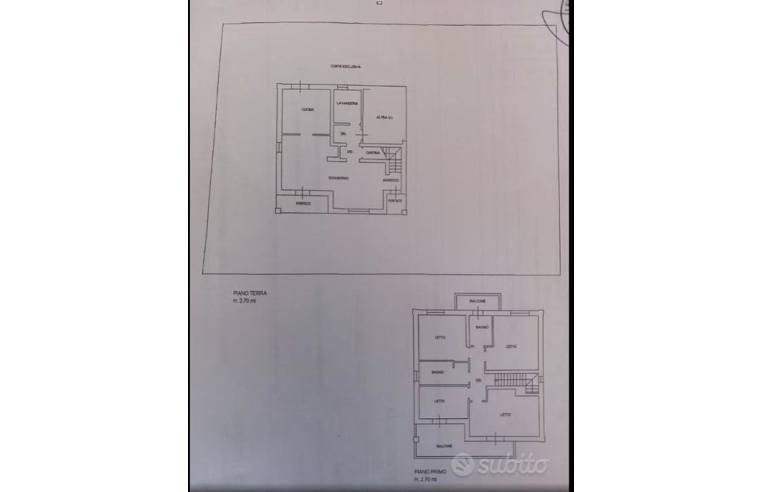
In tranquilla e riservata zona residenziale, vendesi villa singola disposta su due livelli di complessivi 216 mq, situata al termine di una via chiusa all'interno di un contesto esclusivo composto da sole 6 unità.
Piano Terra:
ampio salone, cucina abitabile, bagno finestrato con doccia, pratico ripostiglio, due armadi a muro e una graziosa saletta con vetrata affacciata su una loggia coperta di circa 20mq.
Primo Piano:
Zona notte composta da due bagni, due camere matrimoniali, una camera singola utilizzabile anche come studio e una ulteriore stanza matrimoniale doppia. Completano il piano una loggia e un piccolo balcone.
Caratteristiche aggiuntive:
Possibilità di suddivisione in due appartamenti indipendenti
Aria condizionata al primo piano
Impianto di allarme
Predisposizione per pannelli solari
Pannelli fotovoltaici
Solaio
Giardino e cortile su 4 lati
Soluzione ideale per chi cerca indipendenza, tranquillità e spazi generosi.
Non voglio essere contattato da agenzie o telemarketing
LEGGI TUTTO...
In tranquilla e riservata zona residenziale, vendesi villa singola disposta su due livelli di complessivi 216 mq, situata al termine di una via chiusa all'interno di un contesto esclusivo composto da sole 6 unità.
Piano Terra:
ampio salone, cucina abitabile, bagno finestrato con doccia, pratico ripostiglio, due armadi a muro e una graziosa saletta con vetrata affacciata su una loggia coperta di circa 20mq.
Primo Piano:
Zona notte composta da due bagni, due camere matrimoniali, una camera singola utilizzabile anche come studio e una ulteriore stanza matrimoniale doppia. Completano il piano una loggia e un piccolo balcone.
Caratteristiche aggiuntive:
Possibilità di suddivisione in due appartamenti indipendenti
Aria condizionata al primo piano
Impianto di allarme
Predisposizione per pannelli solari
Pannelli fotovoltaici
Solaio
Giardino e cortile su 4 lati
Soluzione ideale per chi cerca indipendenza, tranquillità e spazi generosi.
Non voglio essere contattato da agenzie o telemarketing
DATI PRINCIPALI
- Riferimento
- 415458
- Contratto
- Vendita
- Tipologia
- Villa
- Superficie
- 216 mq
- Locali
- Più di 5
- Camere da letto
- 4
- Cucina
- Abitabile
- Bagni
- 3
- Totale piani
- 2
- Box/Posto auto
- Posto auto scoperto
CARATTERISTICHE
Balcone
Terrazzo
Giardino privato
COSTI
- Prezzo
- Trattativa Riservata
EFFICIENZA ENERGETICA
- Anno costruzione
- 2008
- Riscaldamento
- Autonomo
- Climatizzazione
- Si
CONTATTA L'INSERZIONISTA
- Annuncio del 21 apr 2026
Annunci immobiliari da Privati a Reggio Emilia
Comune di Reggio Emilia
- Ville singole e a schiera in vendita senza provvigioni Reggio Emilia
- Case in vendita senza agenzia Reggio Emilia
