Privato Vende
Trattativa Riservata
- 4 locali
- 134 mq
Appartamento in Vendita da Privato a Jerzu
Ampi trilocale, cucina e garage
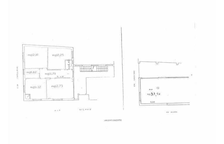
JERZU: Vendesi appartamento in Via Milano 1 a piano terra costituito da tre ampie camere, cucina abitabile, bagno, wc e disimpegno (circa 100 mq) con annessa autorimessa (mq 34) completamente rifinito ed immediatamente abitabile, urbanisticamente regolare acquisibile con mutuo regionale.
Prezzo interessante anche per giovani copie.
Prezzo interessante anche per giovani copie.
DATI PRINCIPALI
- Riferimento
- 239389
- Contratto
- Vendita
- Tipologia
- Appartamento
- Superficie
- 134 mq
- Locali
- 4
COSTI
- Prezzo
- Trattativa Riservata
EFFICIENZA ENERGETICA
- Classe energetica
- D
A+
A
B
C
Classe energetica D
D
E
F
G
MAPPA
CONTATTA L'INSERZIONISTA
- Aggiornato al 03 mar 2026
Annunci immobiliari da Privati a Jerzu
Comune di Jerzu
- Vendita appartamenti da privato Jerzu
- Vendesi case da proprietario Jerzu
- Quadrilocali in vendita da privati Jerzu
